Бесплатная горячая линия работает в режиме 24/7!
Тел.: 8 (800) 100 30 21
info@zavod-mzm.ru
!Внимание! Мы рекомендуем заранее размещать заказ для бронирования производственных мощностей.
Получите бесплатно консультацию нашего технического специалиста
Бесплатная горячая линия работает в режиме 24/7!
Тел.: 8 (800) 100 30 21
info@zavod-mzm.ru
!Внимание! Мы рекомендуем заранее размещать заказ для бронирования производственных мощностей.
Получите бесплатно консультацию нашего технического специалиста
Бесплатная горячая линия работает в режиме 24/7!
Тел.: 8 (800) 100 30 21
info@zavod-mzm.ru
!Внимание! Мы рекомендуем заранее размещать заказ для бронирования производственных мощностей.
Получите бесплатно консультацию нашего технического специалиста
Проектирование
Полный комплект чертежей для строительства зданий, сооружений и других металлоконструкций
Получите консультацию по вашему проекту от наших специалистов
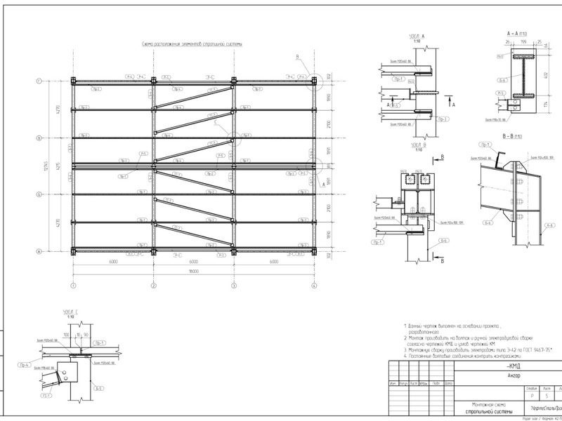
Проектирование КМ - это первый этап подготовки к строительству сооружений из металлоконструкций.
Отрисовкой КМ чертежей занимаются исключительно проектные компании, которые имеют в штате опытных проектировщиков. Они правильно рассчитают все необходимые нагрузки с учетом климатических условий, а также произведут расчет необходимого количества металла, требующегося при строительстве.
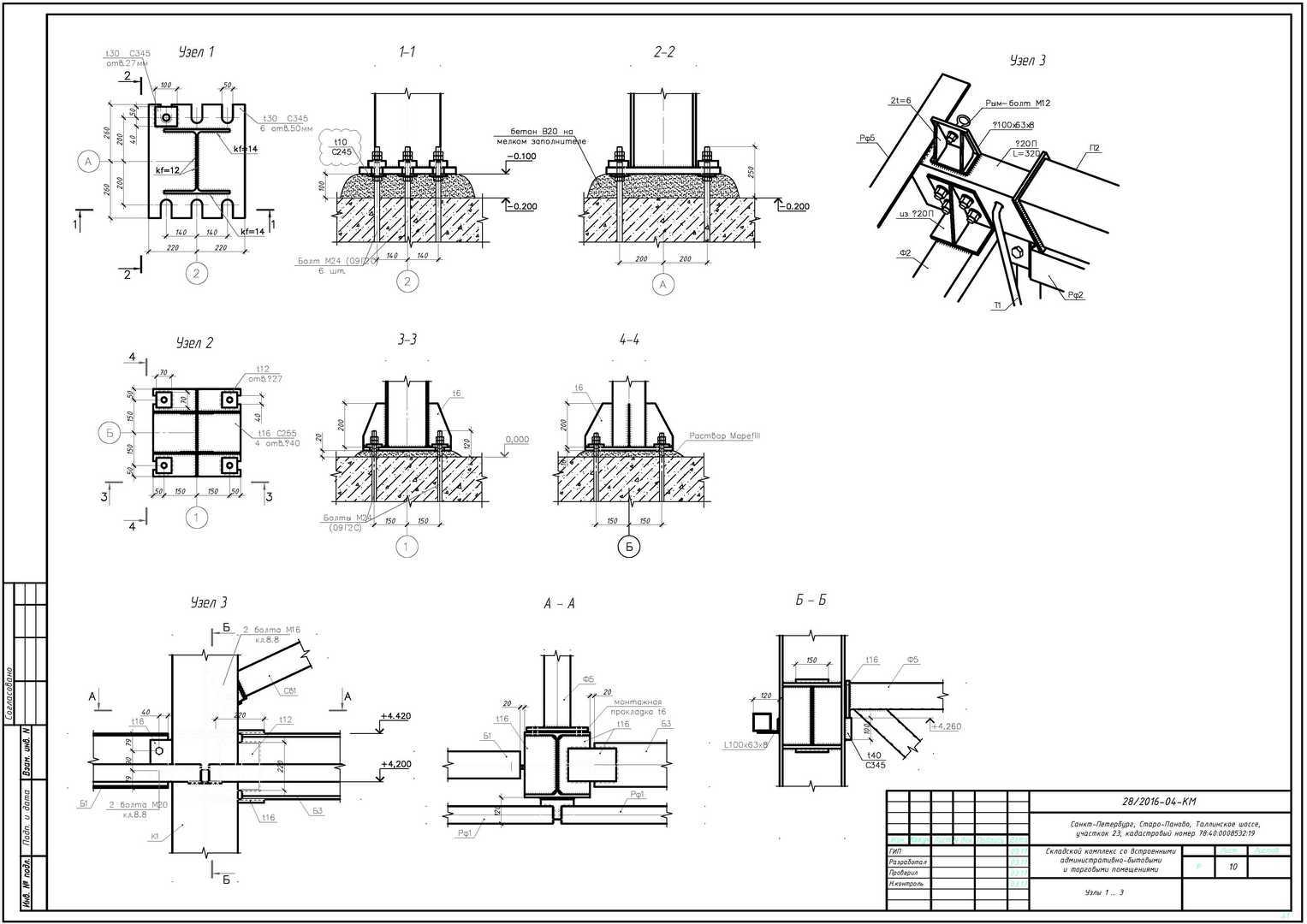
Деталировочные чертежи, они же КМД - разрабатываются на основе КМ и являются основой для производства деталей, а в дальнейшем и монтажа всех элементов конструкции.
Разработка КМ и КМД осуществляется нашими опытными инженерами-конструкторами.
Мы готовы реализовать проект любой сложности в кратчайшие сроки.
Получите консультацию по вашему проекту от наших специалистов
Наш адрес
г. Владимир, 2-й Почаевский проезд, д.6
Московский завод металлоконструкций
Московский офис:
г. Москва, Ижорская ул., дом 5,стр. 1, этаж 3, пом. 1, офис 70а.
Адрес производства:
г. Владимир, 2-й Почаевский проезд, д.6
Телефон: 8 (800) 100 30 21
Email: info@zavod-mzm.ru
Отправьте заявку и наши специалисты свяжутся с вами
Подпишитесь на наши новости:
Бесплатная горячая линия работает в режиме 24/7!
Тел.: 8 (800) 100 30 21
info@zavod-mzm.ru
!Внимание! Мы рекомендуем заранее размещать заказ для бронирования производственных мощностей.
Получите бесплатно консультацию нашего технического специалиста
Политика конфиденциальности
Редактируемый текст
Данный сайт использует Cookie
Редактируемый текст